In vendita – Villa trifamiliare di nuova costruzione in “Residenza Le Ortensie” – Eu. 360.000
Milano - Pozzo d'AddaCaratteristiche
Descrizione
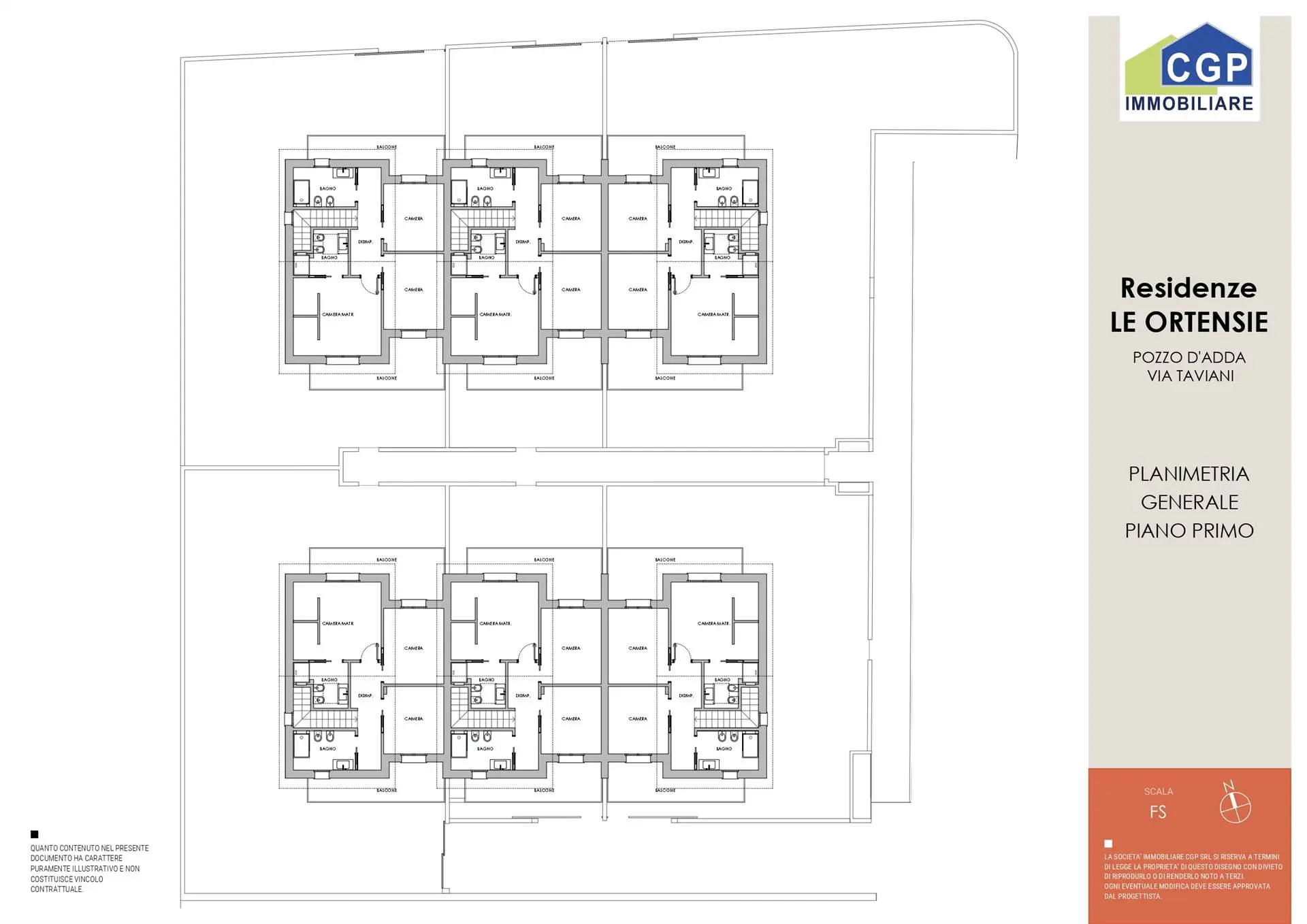
Nel cuore della tranquilla e ben servita “Residenza Le Ortensie”, situata in zona residenziale a pochi passi dal centro del paese e a soli 100 metri dalla fermata dell'autobus per la stazione metropolitana di Gessate che dista 8 km, proponiamo in vendita una moderna ed elegante villa trifamiliare di nuova costruzione, disposta su due livelli fuori terra e dotata di area esterna privata.
L'abitazione si apre con un ingresso indipendente che conduce a un ampio e luminoso soggiorno. La cucina è separata e abitabile, mentre un comodo disimpegno collega direttamente al box, alla lavanderia e a un primo bagno. Al piano superiore si trovano la camera matrimoniale con cabina armadio e bagno privato, due ulteriori camere da letto e un secondo bagno. Tutte le camere affacciano su balconi, offrendo spazi esterni vivibili e riservati.
La villa sarà costruita con struttura antisismica e dotata di un isolamento termo-acustico ad alte prestazioni, sia perimetrale sia tra i vari piani. L'immobile è progettato per garantire il massimo comfort abitativo e un'elevata efficienza energetica: sarà in classe A3, con impianti di ultima generazione, pannelli fotovoltaici da 2,5 kW e priva di allacciamento al gas, a favore di una completa indipendenza energetica.
Le finiture saranno di ottimo livello, come da capitolato, e rispecchiano uno standard moderno e di qualità. Si tratta di una soluzione ideale per famiglie che desiderano vivere in un ambiente innovativo, sicuro e tranquillo, senza rinunciare alla vicinanza ai servizi principali.
La consegna è prevista per giugno 2027. Prezzo di vendita: Eu. 370.000.
Contattaci per maggiori dettagli o per fissare un appuntamento.
Mappa
Dettagli unità immobiliare
- Superficie
- 137 m²
- Superficie commerciale
- 137 m²
- Superficie
- 19 m²
- Superficie
- 190 m²
- Superficie
- 22 m²
Altri immobili che potrebbero interessarti
Dicono di noi
Grazie a Unicacasa, ma soprattutto Giorgio Petroli che ci ha accompagnato fino al fine dell'acquisto con grande professionalità, serietà e disponibilità ! Raccomandiamo vivamente Unicacasa !!
Finalmente ho rogitato l'acquisto del mio appartamento , con agente immobiliare molto seri, professionali, precisi e discreti. Questo vale anche per la proprietaria vendidrice. Vi consiglio questa agenzia.
Due parole descrivono il nostro percorso con L'agenzia Unica Casa : onestà e disponibilità. Siamo stati accolti da Giorgio con un sorriso che ci ha accompagnato fino alla fine della pratica, anche in movimenti partcolarmente tristi come un lockdown e problemi personali. Consigliamo a tutti di rivolgersi a personale competente, come quello di questa agenzia, che con spiegazioni chiare ha saputo guidarci nell'acquisto della nostra prima casa.
Unica Casa ci ha accompagnato con professionalità e trasparenza, fin dall'inizio, offrendo tante soluzioni alle nostre necessità. Si sono preoccupati di proporre quello che stavamo cercando e non quello che avevamo "a portafoglio", successivamente si sono occupati di tutta la parte progettuale di ristrutturazione, dell'organizzazione e della risoluzione delle pratiche burocratiche e dei vari atti necessari, con grande professionalità e precisione. In poche parole abbiamo cambiato casa in totale relax!
La mia situazione è stata di venditrice di immobile Mi ha fatto davvero piacere la chiarezza nello spiegare le modalità di valutazione delle situazioni di mercato in atto al momento, ma anche l’efficenza nella parte operativa quando si è trattato di raccogliere la documentazione necessaria, mostrare l’immobile agli interessati e poi passare a confrontare le offerte giunte. L’efficienza è rimasta sempre presente anche nel percorso successivo per arrivare alla firma prima del preliminare e poi dell’atto notarile, accompagnata da capacità di ascolto e di gentilezza, qualità mai sgradite!
Siamo stati seguiti da Massimo Vismara è stato molto più di un agente immobiliare: con la sua gentilezza, pazienza e disponibilità ci ha accompagnati passo dopo passo, aiutandoci a superare imprevisti e ostacoli senza mai farci perdere la serenità. Grazie a lui siamo arrivati al rogito con il sorriso e tanta emozione… e ora non vediamo l’ora di avere le chiavi in mano e iniziare questa nuova avventura! Consigliamo vivamente a chi cerca una guida affidabile e umana in un passaggio così importante.




















